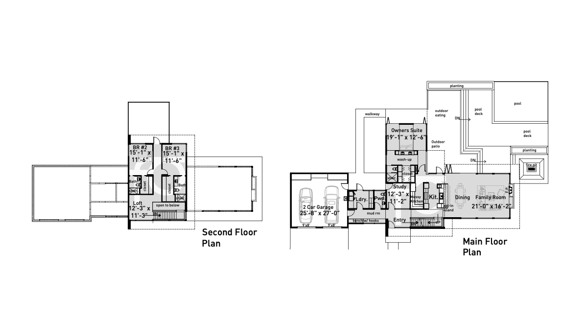
Home Plan 0054 Contemporary View More Home Plans Prices starting at $2,385. This plan can be customized to be your dream home. Complete the form below to be contacted within 2 business days with a quote. Web Site First Name Last Name Email Address Home Plan Number Home Plan Number 0001 0006 0016 0019 0020 0026 0035 0036 0046 0050 0053 0054 I want this plan as is I want this plan as is I want to customize this plan