Did you know that on average 64 million Americans (that’s 20 percent of the U.S. population) live in multigenerational households? Multigenerational households are on the rise.
And now with over 2,000 nursing homes hit with Covid-19 more and more, families are deciding to build in-law suites instead of putting their loved ones in senior living facilities.
So, is adding an in-law suite right for you? Here are a few questions to think about before you add an in-law suite to your existing home or build a new multigeneration home…
1. Will Your Existing Home and/or City Allow It?
2. What Accessibility Concerns Should Be Addressed?
3. What is Your Long-Term Plan?
4. Is It a Good Fit for Your Family?
5. Does It Make Financial Sense?
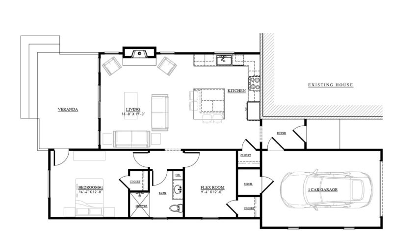
Have more questions or want to see some in-law suite floor plans? Contact us today!

